Elected Officials
Courts
Departments
Initiatives
Open Government
About
Login / Register
Home
/
Property & Tax Records
/
Property Records
/
Property & Tax Search
/
Parcel Profile
/
Sketches
Search for Another Parcel
Parcel Profile
Historical Card
Sketches
Photos
Tax Map
Taxes
Print View
Address: 9 EAGLE ST
Parcel: 35010046000200
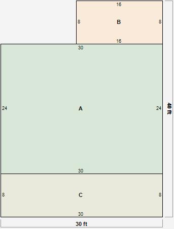
Parcel Sketches
Residential Card 1
A
MAIN
720 square feet
B
MA STOOP/TERR MAS STOOP
128 square feet
C
OFP OPEN FRAME PORCH
240 square feet