Elected Officials
Courts
Departments
Initiatives
Open Government
About
Login / Register
Home
/
Property & Tax Records
/
Property Records
/
Property & Tax Search
/
Parcel Profile
/
Sketches
Search for Another Parcel
Parcel Profile
Historical Card
Sketches
Photos
Tax Map
Taxes
Print View
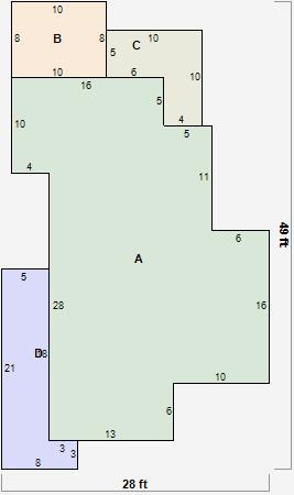
Address: 20 TOWN ST
Parcel: 36002013001900
Parcel Sketches
Residential Card 1
A
MAIN
733 square feet
B
WDDCK WOOD DECKS
80 square feet
C
OFP OPEN FRAME PORCH
70 square feet
D
EFP ENCL FRAME PORCH
114 square feet