Elected Officials
Courts
Departments
Initiatives
Open Government
About
Login / Register
Home
/
Property & Tax Records
/
Property Records
/
Property & Tax Search
/
Parcel Profile
/
Sketches
Search for Another Parcel
Parcel Profile
Historical Card
Sketches
Photos
Tax Map
Taxes
Print View
Address: 20 PERSHING AVE
Parcel: 36002014002200
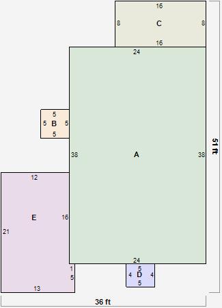
Parcel Sketches
Residential Card 1
A
MAIN
912 square feet
B
EFP ENCL FRAME PORCH
25 square feet
C
OFP OPEN FRAME PORCH
128 square feet
D
OFP OPEN FRAME PORCH
20 square feet
E
FR GR FRAME GARAGE
257 square feet