Address: 62 N LAKE ST   Parcel: 36002015000100

Parcel Sketches


Residential Card 1

Residential Card 1
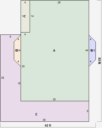
AMAIN1264 square feet
BUNFIN BSMT BASEMENT UNFINISHED MABAY MASONRY BAY MABAY MASONRY BAY AT UN ATTIC-UNFINISHED33 square feet
C EMP ENCL MASONRY PORCH OFP OPEN FRAME PORCH 56 square feet
DUNFIN BSMT BASEMENT UNFINISHED MABAY MASONRY BAY MABAY MASONRY BAY AT UN ATTIC-UNFINISHED33 square feet
E OMP OPEN MASONRY PORCH 579 square feet