Elected Officials
Courts
Departments
Initiatives
Open Government
About
Login / Register
Home
/
Property & Tax Records
/
Property Records
/
Property & Tax Search
/
Parcel Profile
/
Sketches
Search for Another Parcel
Parcel Profile
Historical Card
Sketches
Photos
Tax Map
Taxes
Print View
Address: 78 DELAWARE AVE
Parcel: 36003006000338
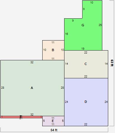
Parcel Sketches
Residential Card 1
A
MAIN
896 square feet
B
OFP OPEN FRAME PORCH
110 square feet
C
UNFIN BSMT BASEMENT UNFINISHED 1S FR ONE STORY FRAME
308 square feet
D
FR GR FRAME GARAGE
528 square feet
E
OFP OPEN FRAME PORCH
55 square feet
F
FROVR FRAME OVERHANG
21 square feet
G
WDDCK WOOD DECKS
394 square feet