Address: 127 E MAIN ST   Parcel: 36004035000500

Parcel Sketches


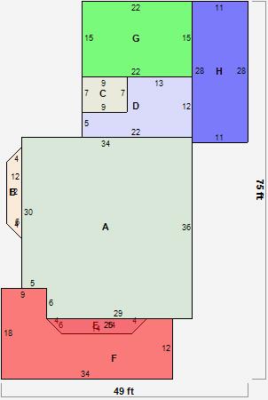
Residential Card 1

Residential Card 1
AMAIN1194 square feet
B MABAY MASONRY BAY 45 square feet
C OFP OPEN FRAME PORCH 1SMAS MASONRY 63 square feet
D 1SMAS MASONRY 1SMAS MASONRY 201 square feet
E MABAY MASONRY BAY 51 square feet
F OMP OPEN MASONRY PORCH 462 square feet
G MA_PT CONC/MAS PATIO WDDCK WOOD DECKS 330 square feet
H WDDCK WOOD DECKS 308 square feet