Elected Officials
Courts
Departments
Initiatives
Open Government
About
Login / Register
Home
/
Property & Tax Records
/
Property Records
/
Property & Tax Search
/
Parcel Profile
/
Sketches
Search for Another Parcel
Parcel Profile
Historical Card
Sketches
Photos
Tax Map
Taxes
Print View
Address: 9 BLAINE ST
Parcel: 36005033001600
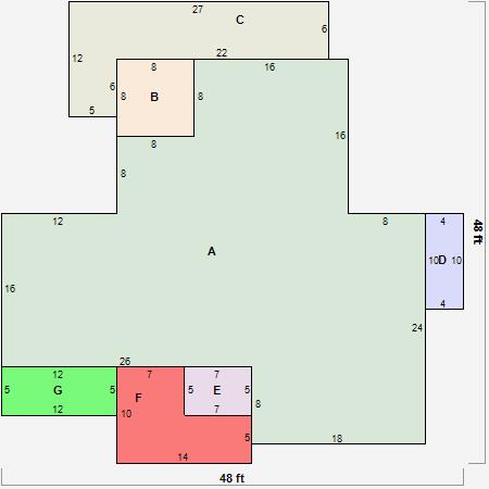
Parcel Sketches
Residential Card 1
A
MAIN
1168 square feet
B
1S FR ONE STORY FRAME
64 square feet
C
WDDCK WOOD DECKS
192 square feet
D
UNFIN BSMT BASEMENT UNFINISHED 1S FR ONE STORY FRAME
40 square feet
E
EFP ENCL FRAME PORCH
35 square feet
F
OFP OPEN FRAME PORCH
105 square feet
G
UNFIN BSMT BASEMENT UNFINISHED 1S FR ONE STORY FRAME
60 square feet