Elected Officials
Courts
Departments
Initiatives
Open Government
About
Login / Register
Home
/
Property & Tax Records
/
Property Records
/
Property & Tax Search
/
Parcel Profile
/
Sketches
Search for Another Parcel
Parcel Profile
Historical Card
Sketches
Photos
Tax Map
Taxes
Print View
Address: 20 EAST ST
Parcel: 36005033002800
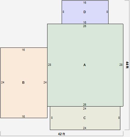
Parcel Sketches
Residential Card 1
A
MAIN
728 square feet
B
FR GR FRAME GARAGE
384 square feet
C
EFP ENCL FRAME PORCH EFP ENCL FRAME PORCH
192 square feet
D
EFP ENCL FRAME PORCH
128 square feet