Elected Officials
Courts
Departments
Initiatives
Open Government
About
Login / Register
Home
/
Property & Tax Records
/
Property Records
/
Property & Tax Search
/
Parcel Profile
/
Sketches
Search for Another Parcel
Parcel Profile
Historical Card
Sketches
Photos
Tax Map
Taxes
Print View
Address: 101 E MAIN ST
Parcel: 36005034000600
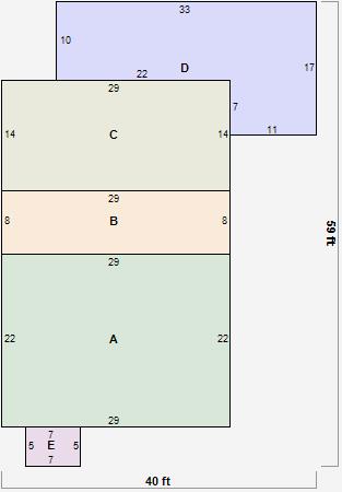
Parcel Sketches
Residential Card 1
A
MAIN
638 square feet
B
UNFIN BSMT BASEMENT UNFINISHED 1S FR ONE STORY FRAME 1S FR ONE STORY FRAME
232 square feet
C
1S FR ONE STORY FRAME
406 square feet
D
WDDCK WOOD DECKS
407 square feet
E
OFP OPEN FRAME PORCH
35 square feet