Elected Officials
Courts
Departments
Initiatives
Open Government
About
Login / Register
Home
/
Property & Tax Records
/
Property Records
/
Property & Tax Search
/
Parcel Profile
/
Sketches
Search for Another Parcel
Parcel Profile
Historical Card
Sketches
Photos
Tax Map
Taxes
Print View
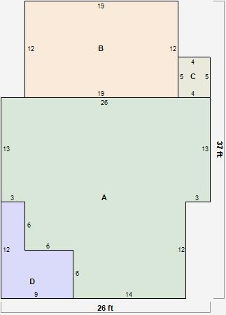
Address: 16 BLAINE ST
Parcel: 36005034002400
Parcel Sketches
Residential Card 1
A
MAIN
542 square feet
B
UNFIN BSMT BASEMENT UNFINISHED 1S FR ONE STORY FRAME
228 square feet
C
OFP OPEN FRAME PORCH 1S FR ONE STORY FRAME
20 square feet
D
OFP OPEN FRAME PORCH
72 square feet