Elected Officials
Courts
Departments
Initiatives
Open Government
About
Login / Register
Home
/
Property & Tax Records
/
Property Records
/
Property & Tax Search
/
Parcel Profile
/
Sketches
Search for Another Parcel
Parcel Profile
Historical Card
Sketches
Photos
Tax Map
Taxes
Print View
Address: 42 BLAINE ST
Parcel: 36005037002200
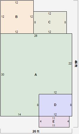
Parcel Sketches
Residential Card 1
A
MAIN
684 square feet
B
WDDCK WOOD DECKS
144 square feet
C
EFP ENCL FRAME PORCH
96 square feet
D
EFP ENCL FRAME PORCH 1S FR ONE STORY FRAME
96 square feet
E
WDDCK WOOD DECKS
44 square feet