Elected Officials
Courts
Departments
Initiatives
Open Government
About
Login / Register
Home
/
Property & Tax Records
/
Property Records
/
Property & Tax Search
/
Parcel Profile
/
Sketches
Search for Another Parcel
Parcel Profile
Historical Card
Sketches
Photos
Tax Map
Taxes
Print View
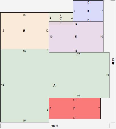
Address: 29 POPLAR ST
Parcel: 36005039000400
Parcel Sketches
Residential Card 1
A
MAIN
684 square feet
B
1S FR ONE STORY FRAME
192 square feet
C
1S FR ONE STORY FRAME
32 square feet
D
EFP ENCL FRAME PORCH
70 square feet
E
1S FR ONE STORY FRAME
180 square feet
F
EFP ENCL FRAME PORCH
119 square feet