Elected Officials
Courts
Departments
Initiatives
Open Government
About
Login / Register
Home
/
Property & Tax Records
/
Property Records
/
Property & Tax Search
/
Parcel Profile
/
Sketches
Search for Another Parcel
Parcel Profile
Historical Card
Sketches
Photos
Tax Map
Taxes
Print View
Address: 33 POPLAR ST
Parcel: 36005039000600
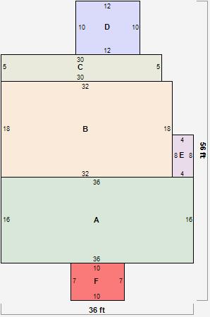
Parcel Sketches
Residential Card 1
A
MAIN
576 square feet
B
UNFIN BSMT BASEMENT UNFINISHED 1S FR ONE STORY FRAME 1S FR ONE STORY FRAME
576 square feet
C
UNFIN BSMT BASEMENT UNFINISHED 1S FR ONE STORY FRAME
150 square feet
D
WDDCK WOOD DECKS
120 square feet
E
MA_PT CONC/MAS PATIO
32 square feet
F
EFP ENCL FRAME PORCH
70 square feet