Elected Officials
Courts
Departments
Initiatives
Open Government
About
Login / Register
Home
/
Property & Tax Records
/
Property Records
/
Property & Tax Search
/
Parcel Profile
/
Sketches
Search for Another Parcel
Parcel Profile
Historical Card
Sketches
Photos
Tax Map
Taxes
Print View
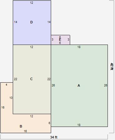
Address: 12 SMEDLEY ST
Parcel: 36005039002100
Parcel Sketches
Residential Card 1
A
MAIN
468 square feet
B
EFP ENCL FRAME PORCH
136 square feet
C
UNFIN BSMT BASEMENT UNFINISHED 1S FR ONE STORY FRAME
264 square feet
D
1S FR ONE STORY FRAME
168 square feet
E
1S FR ONE STORY FRAME
18 square feet