Elected Officials
Courts
Departments
Initiatives
Open Government
About
Login / Register
Home
/
Property & Tax Records
/
Property Records
/
Property & Tax Search
/
Parcel Profile
/
Sketches
Search for Another Parcel
Parcel Profile
Historical Card
Sketches
Photos
Tax Map
Taxes
Print View
Address: 25 SMEDLEY ST
Parcel: 36005040001000
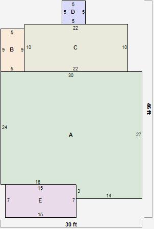
Parcel Sketches
Residential Card 1
A
MAIN
762 square feet
B
EFP ENCL FRAME PORCH
45 square feet
C
UNFIN BSMT BASEMENT UNFINISHED 1S FR ONE STORY FRAME AT FN ATTIC-FINISHED
220 square feet
D
WDDCK WOOD DECKS
25 square feet
E
EFP ENCL FRAME PORCH
105 square feet