Elected Officials
Courts
Departments
Initiatives
Open Government
About
Login / Register
Home
/
Property & Tax Records
/
Property Records
/
Property & Tax Search
/
Parcel Profile
/
Sketches
Search for Another Parcel
Parcel Profile
Historical Card
Sketches
Photos
Tax Map
Taxes
Print View
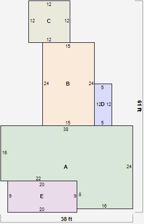
Address: 70 VINE ST
Parcel: 36005040001600
Parcel Sketches
Residential Card 1
A
MAIN
736 square feet
B
1S FR ONE STORY FRAME 1S FR ONE STORY FRAME
360 square feet
C
EFP ENCL FRAME PORCH
144 square feet
D
OFP OPEN FRAME PORCH WDDCK WOOD DECKS
60 square feet
E
OFP OPEN FRAME PORCH
180 square feet