Elected Officials
Courts
Departments
Initiatives
Open Government
About
Login / Register
Home
/
Property & Tax Records
/
Property Records
/
Property & Tax Search
/
Parcel Profile
/
Sketches
Search for Another Parcel
Parcel Profile
Historical Card
Sketches
Photos
Tax Map
Taxes
Print View
Address: 79 CLAY ST
Parcel: 36010038000700
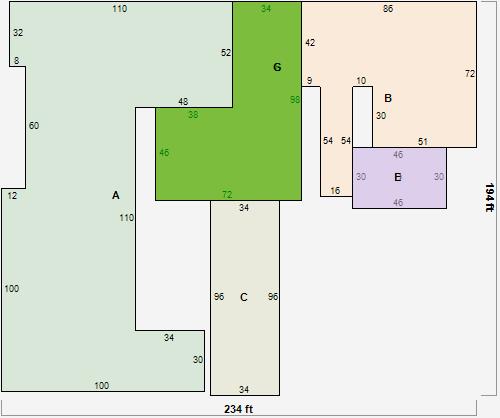
Parcel Sketches
Commercial Card 1
A
MAIN
1548 square feet
B
MAIN
6006 square feet
C
MAIN
3264 square feet
D
MAIN
1380 square feet
E
MAIN
1380 square feet
F
MAIN
5080 square feet
G
MAIN
5080 square feet
H
MAIN
4480 square feet