Elected Officials
Courts
Departments
Initiatives
Open Government
About
Login / Register
Home
/
Property & Tax Records
/
Property Records
/
Property & Tax Search
/
Parcel Profile
/
Sketches
Search for Another Parcel
Parcel Profile
Historical Card
Sketches
Photos
Tax Map
Taxes
Print View
Address: 59 LIBERTY ST
Parcel: 36010060000900
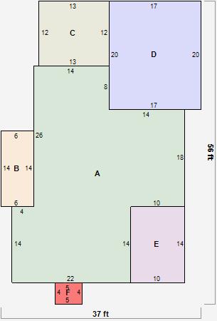
Parcel Sketches
Residential Card 1
A
MAIN
924 square feet
B
EFP ENCL FRAME PORCH
84 square feet
C
EFP ENCL FRAME PORCH
156 square feet
D
WDDCK WOOD DECKS
340 square feet
E
1S FR ONE STORY FRAME
140 square feet
F
MA STOOP/TERR MAS STOOP
20 square feet