Elected Officials
Courts
Departments
Initiatives
Open Government
About
Login / Register
Home
/
Property & Tax Records
/
Property Records
/
Property & Tax Search
/
Parcel Profile
/
Sketches
Search for Another Parcel
Parcel Profile
Historical Card
Sketches
Photos
Tax Map
Taxes
Print View
Address: 9910 E LAKE RD
Parcel: 37001001002201
Parcel Sketches
Residential Card 1
A
MAIN
608 square feet
B
FR GR FRAME GARAGE
576 square feet
C
1S FR ONE STORY FRAME
64 square feet
D
1S FR ONE STORY FRAME
96 square feet
E
1S FR ONE STORY FRAME
288 square feet
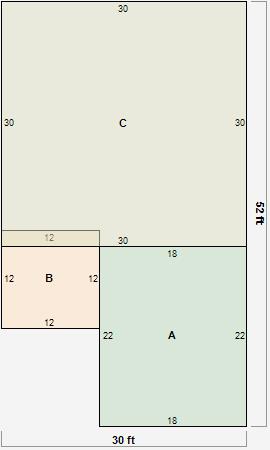
Residential Card 2
A
MAIN
396 square feet
B
1S FR ONE STORY FRAME
144 square feet
C
FR GR FRAME GARAGE AT UN ATTIC-UNFINISHED
900 square feet