Elected Officials
Courts
Departments
Initiatives
Open Government
About
Login / Register
Home
/
Property & Tax Records
/
Property Records
/
Property & Tax Search
/
Parcel Profile
/
Sketches
Search for Another Parcel
Parcel Profile
Historical Card
Sketches
Photos
Tax Map
Taxes
Print View
Address: 9950 E LAKE RD
Parcel: 37001001002300
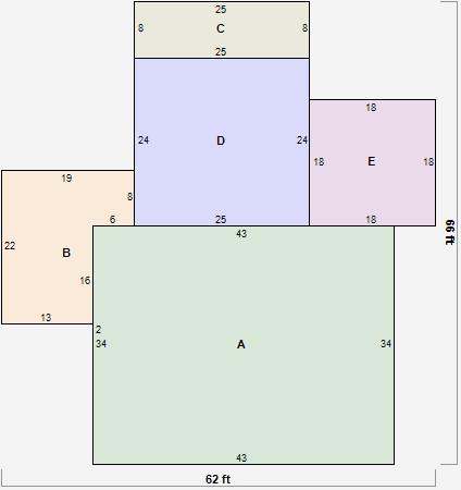
Parcel Sketches
Residential Card 1
A
MAIN
1462 square feet
B
CARPT CARPORT
334 square feet
C
EFP ENCL FRAME PORCH EFP ENCL FRAME PORCH
200 square feet
D
1S FR ONE STORY FRAME 1S FR ONE STORY FRAME
600 square feet
E
1S FR ONE STORY FRAME
324 square feet