Elected Officials
Courts
Departments
Initiatives
Open Government
About
Login / Register
Home
/
Property & Tax Records
/
Property Records
/
Property & Tax Search
/
Parcel Profile
/
Sketches
Search for Another Parcel
Parcel Profile
Historical Card
Sketches
Photos
Tax Map
Taxes
Print View
Address: 10428 E LAKE RD
Parcel: 37002001004400
Parcel Sketches
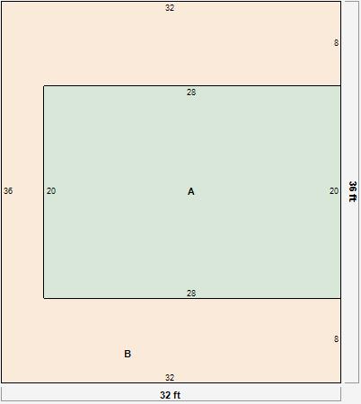
Residential Card 1
A
MAIN
2282 square feet
B
OFP OPEN FRAME PORCH
88 square feet
C
WDDCK WOOD DECKS
285 square feet
D
WDDCK WOOD DECKS
416 square feet
E
FR GR FRAME GARAGE
1080 square feet
Residential Card 2
A
MAIN
560 square feet
B
OFP OPEN FRAME PORCH
592 square feet