Elected Officials
Courts
Departments
Initiatives
Open Government
About
Login / Register
Home
/
Property & Tax Records
/
Property Records
/
Property & Tax Search
/
Parcel Profile
/
Sketches
Search for Another Parcel
Parcel Profile
Historical Card
Sketches
Photos
Tax Map
Taxes
Print View
Address: 1771 RIDGECREST RD
Parcel: 37004051000300
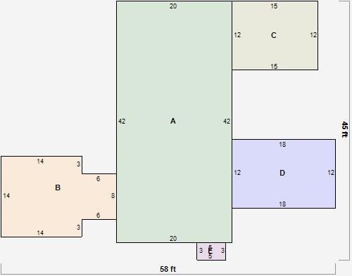
Parcel Sketches
Residential Card 1
A
MAIN
840 square feet
B
1S FR ONE STORY FRAME
244 square feet
C
FR GR FRAME GARAGE
180 square feet
D
1S FR ONE STORY FRAME
216 square feet
E
OFP OPEN FRAME PORCH
15 square feet