Elected Officials
Courts
Departments
Initiatives
Open Government
About
Login / Register
Home
/
Property & Tax Records
/
Property Records
/
Property & Tax Search
/
Parcel Profile
/
Sketches
Search for Another Parcel
Parcel Profile
Historical Card
Sketches
Photos
Tax Map
Taxes
Print View
Address: 11641 OLD LAKE RD
Parcel: 37010017000200
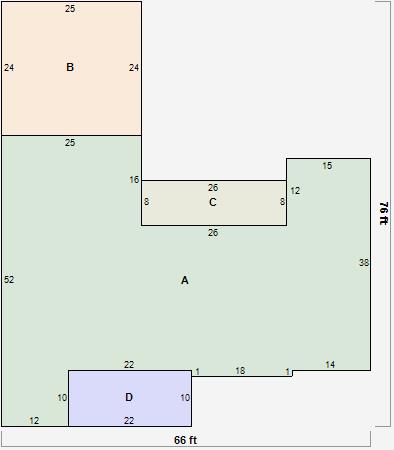
Parcel Sketches
Residential Card 1
A
MAIN
2434 square feet
B
FR GR FRAME GARAGE
600 square feet
C
OFP OPEN FRAME PORCH
208 square feet
D
OFP OPEN FRAME PORCH OFP OPEN FRAME PORCH
220 square feet