Elected Officials
Courts
Departments
Initiatives
Open Government
About
Login / Register
Home
/
Property & Tax Records
/
Property Records
/
Property & Tax Search
/
Parcel Profile
/
Sketches
Search for Another Parcel
Parcel Profile
Historical Card
Sketches
Photos
Tax Map
Taxes
Print View
Address: 11759 OLD LAKE RD
Parcel: 37010017001900
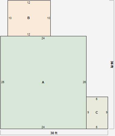
Parcel Sketches
Residential Card 1
A
MAIN
624 square feet
B
WDDCK WOOD DECKS
120 square feet
C
OFP OPEN FRAME PORCH
54 square feet