Elected Officials
Courts
Departments
Initiatives
Open Government
About
Login / Register
Home
/
Property & Tax Records
/
Property Records
/
Property & Tax Search
/
Parcel Profile
/
Sketches
Search for Another Parcel
Parcel Profile
Historical Card
Sketches
Photos
Tax Map
Taxes
Print View
Address: 355 WOODMERE RD
Parcel: 37011038000101
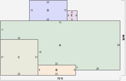
Parcel Sketches
Residential Card 1
A
MAIN
1568 square feet
B
OFP OPEN FRAME PORCH
132 square feet
C
FR GR FRAME GARAGE
462 square feet
D
OFP OPEN FRAME PORCH
264 square feet
E
WDDCK WOOD DECKS
36 square feet