Elected Officials
Courts
Departments
Initiatives
Open Government
About
Login / Register
Home
/
Property & Tax Records
/
Property Records
/
Property & Tax Search
/
Parcel Profile
/
Sketches
Search for Another Parcel
Parcel Profile
Historical Card
Sketches
Photos
Tax Map
Taxes
Print View
Address: 212 EIGHTEEN MILE LN
Parcel: 37012018004600
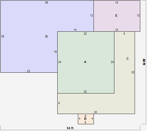
Parcel Sketches
Residential Card 1
A
MAIN
528 square feet
B
MA STOOP/TERR MAS STOOP
24 square feet
C
EFP ENCL FRAME PORCH
432 square feet
D
1S FR ONE STORY FRAME
784 square feet
E
WDDCK WOOD DECKS
216 square feet