Elected Officials
Courts
Departments
Initiatives
Open Government
About
Login / Register
Home
/
Property & Tax Records
/
Property Records
/
Property & Tax Search
/
Parcel Profile
/
Sketches
Search for Another Parcel
Parcel Profile
Historical Card
Sketches
Photos
Tax Map
Taxes
Print View
Address: EIGHTEEN MILE LN
Parcel: 37012018004700
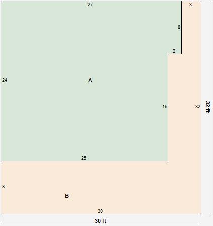
Parcel Sketches
Residential Card 1
A
MAIN
616 square feet
B
EFP ENCL FRAME PORCH
344 square feet