Elected Officials
Courts
Departments
Initiatives
Open Government
About
Login / Register
Home
/
Property & Tax Records
/
Property Records
/
Property & Tax Search
/
Parcel Profile
/
Sketches
Search for Another Parcel
Parcel Profile
Historical Card
Sketches
Photos
Tax Map
Taxes
Print View
Address: 50 RIVERSIDE DR
Parcel: 37013018011000
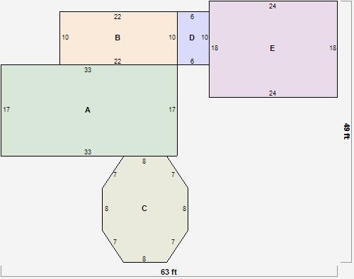
Parcel Sketches
Residential Card 1
A
MAIN
561 square feet
B
1S FR ONE STORY FRAME
220 square feet
C
1S FR ONE STORY FRAME AT FN ATTIC-FINISHED
272 square feet
D
EFP ENCL FRAME PORCH
60 square feet
E
FR GR FRAME GARAGE
432 square feet