Elected Officials
Courts
Departments
Initiatives
Open Government
About
Login / Register
Home
/
Property & Tax Records
/
Property Records
/
Property & Tax Search
/
Parcel Profile
/
Sketches
Search for Another Parcel
Parcel Profile
Historical Card
Sketches
Photos
Tax Map
Taxes
Print View
Address: 50 N GAY RD
Parcel: 37014025004700
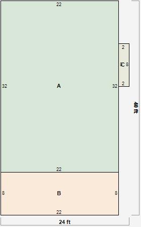
Parcel Sketches
Residential Card 1
A
MAIN
704 square feet
B
OMP OPEN MASONRY PORCH
176 square feet
C
MABAY MASONRY BAY
16 square feet