Elected Officials
Courts
Departments
Initiatives
Open Government
About
Login / Register
Home
/
Property & Tax Records
/
Property Records
/
Property & Tax Search
/
Parcel Profile
/
Sketches
Search for Another Parcel
Parcel Profile
Historical Card
Sketches
Photos
Tax Map
Taxes
Print View
Address: 1222 GAY RD
Parcel: 37015036000200
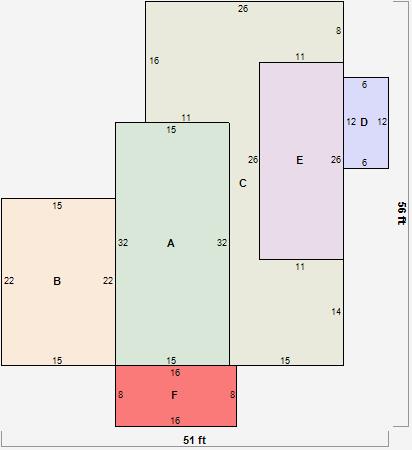
Parcel Sketches
Residential Card 1
A
MAIN
480 square feet
B
1S FR ONE STORY FRAME
330 square feet
C
1S FR ONE STORY FRAME
610 square feet
D
EFP ENCL FRAME PORCH
72 square feet
E
EFP ENCL FRAME PORCH
286 square feet
F
EFP ENCL FRAME PORCH
128 square feet