Elected Officials
Courts
Departments
Initiatives
Open Government
About
Login / Register
Home
/
Property & Tax Records
/
Property Records
/
Property & Tax Search
/
Parcel Profile
/
Sketches
Search for Another Parcel
Parcel Profile
Historical Card
Sketches
Photos
Tax Map
Taxes
Print View
Address: 1031 DEWEY RD
Parcel: 37015037002300
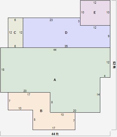
Parcel Sketches
Residential Card 1
A
MAIN
928 square feet
B
EFP ENCL FRAME PORCH
245 square feet
C
EFP ENCL FRAME PORCH
72 square feet
D
1S FR ONE STORY FRAME
384 square feet
E
MA_PT CONC/MAS PATIO
120 square feet