Elected Officials
Courts
Departments
Initiatives
Open Government
About
Login / Register
Home
/
Property & Tax Records
/
Property Records
/
Property & Tax Search
/
Parcel Profile
/
Sketches
Search for Another Parcel
Parcel Profile
Historical Card
Sketches
Photos
Tax Map
Taxes
Print View
Address: 1512 GAY RD
Parcel: 37016036000300
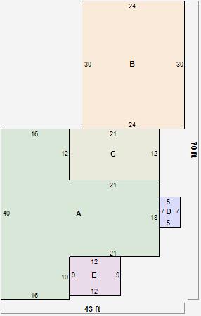
Parcel Sketches
Residential Card 1
A
MAIN
1018 square feet
B
FR GR FRAME GARAGE
720 square feet
C
1S FR ONE STORY FRAME 1/2FR FRAME HALF-STORY
252 square feet
D
EFP ENCL FRAME PORCH
35 square feet
E
WDDCK WOOD DECKS
108 square feet