Elected Officials
Courts
Departments
Initiatives
Open Government
About
Login / Register
Home
/
Property & Tax Records
/
Property Records
/
Property & Tax Search
/
Parcel Profile
/
Sketches
Search for Another Parcel
Parcel Profile
Historical Card
Sketches
Photos
Tax Map
Taxes
Print View
Address: 11872 E MAIN RD
Parcel: 37017039001801
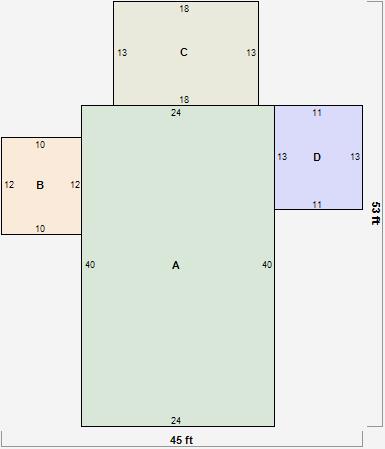
Parcel Sketches
Residential Card 1
A
MAIN
960 square feet
B
1SMAS MASONRY
120 square feet
C
WDDCK WOOD DECKS
234 square feet
D
EFP ENCL FRAME PORCH
143 square feet