Elected Officials
Courts
Departments
Initiatives
Open Government
About
Login / Register
Home
/
Property & Tax Records
/
Property Records
/
Property & Tax Search
/
Parcel Profile
/
Sketches
Search for Another Parcel
Parcel Profile
Historical Card
Sketches
Photos
Tax Map
Taxes
Print View
Address: 10492 SIDEHILL RD
Parcel: 37022101003500
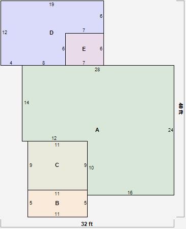
Parcel Sketches
Residential Card 1
A
MAIN
552 square feet
B
OFP OPEN FRAME PORCH
55 square feet
C
EFP ENCL FRAME PORCH
99 square feet
D
WDDCK WOOD DECKS
186 square feet
E
EFP ENCL FRAME PORCH
42 square feet