Elected Officials
Courts
Departments
Initiatives
Open Government
About
Login / Register
Home
/
Property & Tax Records
/
Property Records
/
Property & Tax Search
/
Parcel Profile
/
Sketches
Search for Another Parcel
Parcel Profile
Historical Card
Sketches
Photos
Tax Map
Taxes
Print View
Address: 5575 MEEHL RD
Parcel: 37022101004300
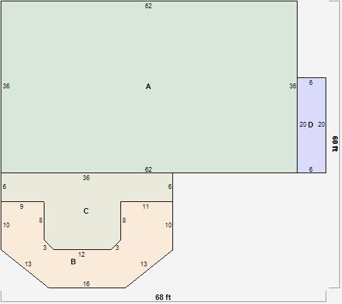
Parcel Sketches
Residential Card 1
A
MAIN
2232 square feet
B
WDDCK WOOD DECKS
412 square feet
C
1S FR ONE STORY FRAME
372 square feet
D
1S FR ONE STORY FRAME
120 square feet