Elected Officials
Courts
Departments
Initiatives
Open Government
About
Login / Register
Home
/
Property & Tax Records
/
Property Records
/
Property & Tax Search
/
Parcel Profile
/
Sketches
Search for Another Parcel
Parcel Profile
Historical Card
Sketches
Photos
Tax Map
Taxes
Print View
Address: 5013 S WASHINGTON ST
Parcel: 37023105001800
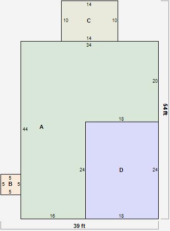
Parcel Sketches
Residential Card 1
A
MAIN
1064 square feet
B
MA STOOP/TERR MAS STOOP
25 square feet
C
OFP OPEN FRAME PORCH
140 square feet
D
1S FR ONE STORY FRAME AT FN ATTIC-FINISHED
432 square feet