Elected Officials
Courts
Departments
Initiatives
Open Government
About
Login / Register
Home
/
Property & Tax Records
/
Property Records
/
Property & Tax Search
/
Parcel Profile
/
Sketches
Search for Another Parcel
Parcel Profile
Historical Card
Sketches
Photos
Tax Map
Taxes
Print View
Address: 11359 SHADDUCK RD
Parcel: 37024105000306
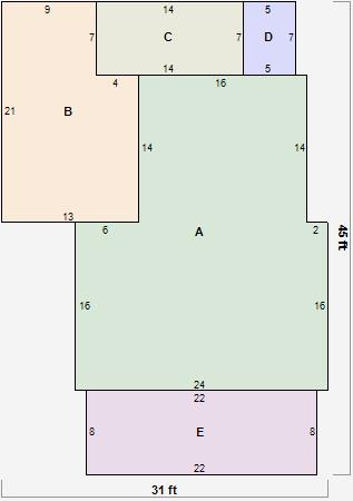
Parcel Sketches
Residential Card 1
A
MAIN
608 square feet
B
1S FR ONE STORY FRAME
245 square feet
C
EFP ENCL FRAME PORCH
98 square feet
D
EFP ENCL FRAME PORCH
35 square feet
E
EFP ENCL FRAME PORCH
176 square feet