Elected Officials
Courts
Departments
Initiatives
Open Government
About
Login / Register
Home
/
Property & Tax Records
/
Property Records
/
Property & Tax Search
/
Parcel Profile
/
Sketches
Search for Another Parcel
Parcel Profile
Historical Card
Sketches
Photos
Tax Map
Taxes
Print View
Address: 8218 GULF RD
Parcel: 37026080000400
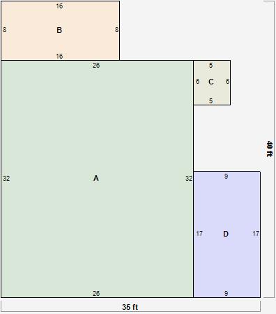
Parcel Sketches
Residential Card 1
A
MAIN
832 square feet
B
EFP ENCL FRAME PORCH
128 square feet
C
EFP ENCL FRAME PORCH
30 square feet
D
ST_PT STONE OR TILE PATIO
153 square feet
Residential Card 2
A
MAIN
840 square feet
B
MA_PT CONC/MAS PATIO
24 square feet
C
OFP OPEN FRAME PORCH
60 square feet