Elected Officials
Courts
Departments
Initiatives
Open Government
About
Login / Register
Home
/
Property & Tax Records
/
Property Records
/
Property & Tax Search
/
Parcel Profile
/
Sketches
Search for Another Parcel
Parcel Profile
Historical Card
Sketches
Photos
Tax Map
Taxes
Print View
Address: 8533 SINGER RD
Parcel: 37026110001400
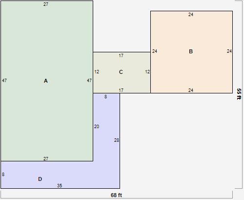
Parcel Sketches
Residential Card 1
A
MAIN
1269 square feet
B
FR GR FRAME GARAGE
576 square feet
C
EFP ENCL FRAME PORCH
204 square feet
D
OFP OPEN FRAME PORCH
440 square feet