Elected Officials
Courts
Departments
Initiatives
Open Government
About
Login / Register
Home
/
Property & Tax Records
/
Property Records
/
Property & Tax Search
/
Parcel Profile
/
Sketches
Search for Another Parcel
Parcel Profile
Historical Card
Sketches
Photos
Tax Map
Taxes
Print View
Address: 8515 GULF RD
Parcel: 37027111000401
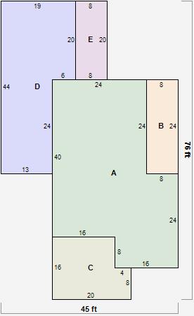
Parcel Sketches
Residential Card 1
A
MAIN
1216 square feet
B
EFP ENCL FRAME PORCH
192 square feet
C
EFP ENCL FRAME PORCH
288 square feet
D
UNFIN BSMT BASEMENT UNFINISHED 1S FR ONE STORY FRAME
692 square feet
E
OFP OPEN FRAME PORCH
160 square feet