Elected Officials
Courts
Departments
Initiatives
Open Government
About
Login / Register
Home
/
Property & Tax Records
/
Property Records
/
Property & Tax Search
/
Parcel Profile
/
Sketches
Search for Another Parcel
Parcel Profile
Historical Card
Sketches
Photos
Tax Map
Taxes
Print View
Address: 9013 OX BOW RD
Parcel: 37027115001700
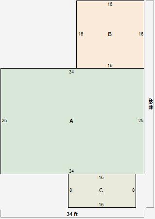
Parcel Sketches
Residential Card 1
A
MAIN
850 square feet
B
WDDCK WOOD DECKS
256 square feet
C
OFP OPEN FRAME PORCH
128 square feet