Elected Officials
Courts
Departments
Initiatives
Open Government
About
Login / Register
Home
/
Property & Tax Records
/
Property Records
/
Property & Tax Search
/
Parcel Profile
/
Sketches
Search for Another Parcel
Parcel Profile
Historical Card
Sketches
Photos
Tax Map
Taxes
Print View
Address: 8474 WILLIAMS RD
Parcel: 37032127001000
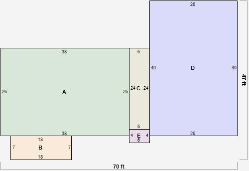
Parcel Sketches
Residential Card 1
A
MAIN
988 square feet
B
OFP OPEN FRAME PORCH
126 square feet
C
EFP ENCL FRAME PORCH
144 square feet
D
FR GR FRAME GARAGE
1040 square feet
E
MA STOOP/TERR MAS STOOP
24 square feet