Elected Officials
Courts
Departments
Initiatives
Open Government
About
Login / Register
Home
/
Property & Tax Records
/
Property Records
/
Property & Tax Search
/
Parcel Profile
/
Sketches
Search for Another Parcel
Parcel Profile
Historical Card
Sketches
Photos
Tax Map
Taxes
Print View
Address: 8295 WILLIAMS RD
Parcel: 37033128000900
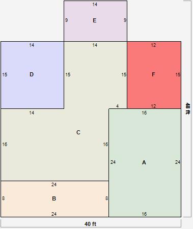
Parcel Sketches
Residential Card 1
A
MAIN
384 square feet
B
OFP OPEN FRAME PORCH
192 square feet
C
1S FR ONE STORY FRAME
594 square feet
D
MA_PT CONC/MAS PATIO
210 square feet
E
FR UT FRAME UTILITY BUILDING
126 square feet
F
1S FR ONE STORY FRAME
180 square feet