Elected Officials
Courts
Departments
Initiatives
Open Government
About
Login / Register
Home
/
Property & Tax Records
/
Property Records
/
Property & Tax Search
/
Parcel Profile
/
Sketches
Search for Another Parcel
Parcel Profile
Historical Card
Sketches
Photos
Tax Map
Taxes
Print View
Address: ARNOLD RD
Parcel: 37033130001600
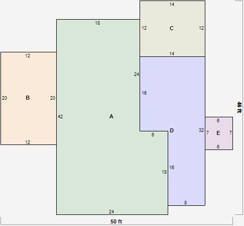
Parcel Sketches
Residential Card 1
A
MAIN
864 square feet
B
OFP OPEN FRAME PORCH
240 square feet
C
1S FR ONE STORY FRAME
168 square feet
D
1S FR ONE STORY FRAME
352 square feet
E
OFP OPEN FRAME PORCH
42 square feet