Elected Officials
Courts
Departments
Initiatives
Open Government
About
Login / Register
Home
/
Property & Tax Records
/
Property Records
/
Property & Tax Search
/
Parcel Profile
/
Sketches
Search for Another Parcel
Parcel Profile
Historical Card
Sketches
Photos
Tax Map
Taxes
Print View
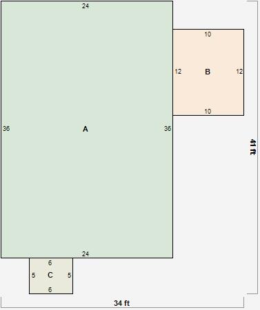
Address: 8811 STATION RD
Parcel: 37034132001500
Parcel Sketches
Residential Card 1
A
MAIN
864 square feet
B
FR UT FRAME UTILITY BUILDING
120 square feet
C
OFP OPEN FRAME PORCH
30 square feet