Elected Officials
Courts
Departments
Initiatives
Open Government
About
Login / Register
Home
/
Property & Tax Records
/
Property Records
/
Property & Tax Search
/
Parcel Profile
/
Sketches
Search for Another Parcel
Parcel Profile
Historical Card
Sketches
Photos
Tax Map
Taxes
Print View
Address: 9316 FINDLEY LK
Parcel: 37035135000100
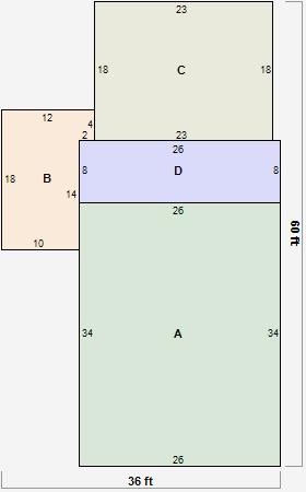
Parcel Sketches
Residential Card 1
A
MAIN
884 square feet
B
EFP ENCL FRAME PORCH
188 square feet
C
FR GR FRAME GARAGE
414 square feet
D
FR UT FRAME UTILITY BUILDING AT FN ATTIC-FINISHED
208 square feet