Elected Officials
Courts
Departments
Initiatives
Open Government
About
Login / Register
Home
/
Property & Tax Records
/
Property Records
/
Property & Tax Search
/
Parcel Profile
/
Sketches
Search for Another Parcel
Parcel Profile
Historical Card
Sketches
Photos
Tax Map
Taxes
Print View
Address: 3147 HAPPY VALLEY RD
Parcel: 39006007000600
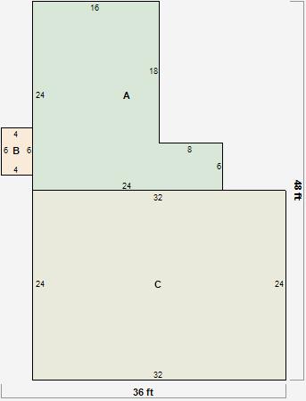
Parcel Sketches
Residential Card 1
A
MAIN
432 square feet
B
EFP ENCL FRAME PORCH
24 square feet
C
1S FR ONE STORY FRAME
768 square feet