Elected Officials
Courts
Departments
Initiatives
Open Government
About
Login / Register
Home
/
Property & Tax Records
/
Property Records
/
Property & Tax Search
/
Parcel Profile
/
Sketches
Search for Another Parcel
Parcel Profile
Historical Card
Sketches
Photos
Tax Map
Taxes
Print View
Address: 12109 W LAKE RD
Parcel: 39007010000800
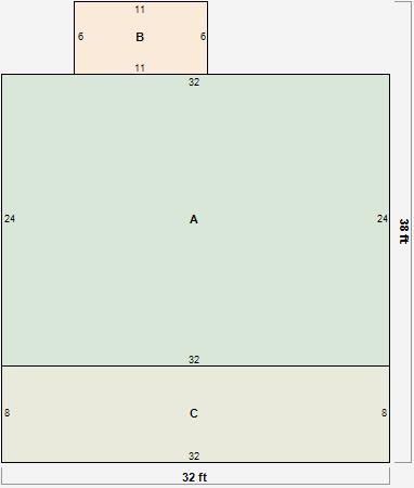
Parcel Sketches
Residential Card 1
A
MAIN
1408 square feet
B
OFP OPEN FRAME PORCH
168 square feet
C
1S FR ONE STORY FRAME
56 square feet
D
EFP ENCL FRAME PORCH
176 square feet
E
CANPY CANOPY
36 square feet
Residential Card 2
A
MAIN
768 square feet
B
OFP OPEN FRAME PORCH
66 square feet
C
OFP OPEN FRAME PORCH
256 square feet