Elected Officials
Courts
Departments
Initiatives
Open Government
About
Login / Register
Home
/
Property & Tax Records
/
Property Records
/
Property & Tax Search
/
Parcel Profile
/
Sketches
Search for Another Parcel
Parcel Profile
Historical Card
Sketches
Photos
Tax Map
Taxes
Print View
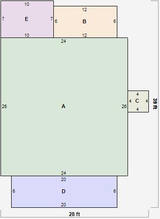
Address: 2938 MCCHESNEY RD
Parcel: 39008027000600
Parcel Sketches
Residential Card 1
A
MAIN
624 square feet
B
EFP ENCL FRAME PORCH
72 square feet
C
MA STOOP/TERR MAS STOOP
16 square feet
D
OFP OPEN FRAME PORCH
120 square feet
E
FR UT FRAME UTILITY BUILDING
70 square feet