Elected Officials
Courts
Departments
Initiatives
Open Government
About
Login / Register
Home
/
Property & Tax Records
/
Property Records
/
Property & Tax Search
/
Parcel Profile
/
Sketches
Search for Another Parcel
Parcel Profile
Historical Card
Sketches
Photos
Tax Map
Taxes
Print View
Address: 3524 ROUTE 215
Parcel: 39008028000500
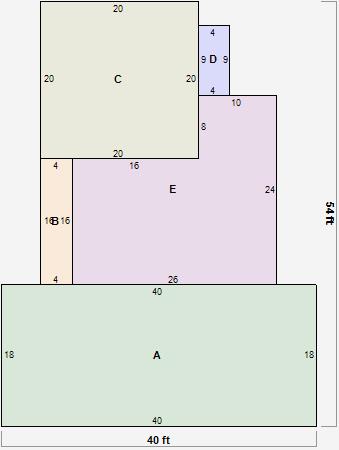
Parcel Sketches
Residential Card 1
A
MAIN
720 square feet
B
OFP OPEN FRAME PORCH
64 square feet
C
FR GR FRAME GARAGE
400 square feet
D
FR UT FRAME UTILITY BUILDING
36 square feet
E
1S FR ONE STORY FRAME
496 square feet